Espace propriétaire

Votre recherche

Saint-Jean-Saint-Maurice-sur-Loire (42155)

5 pièces - 120 m²

Grange à rénover - 15 minutes de Roanne

95 000 €
Ref : 466GSJ
Découvrir le bien

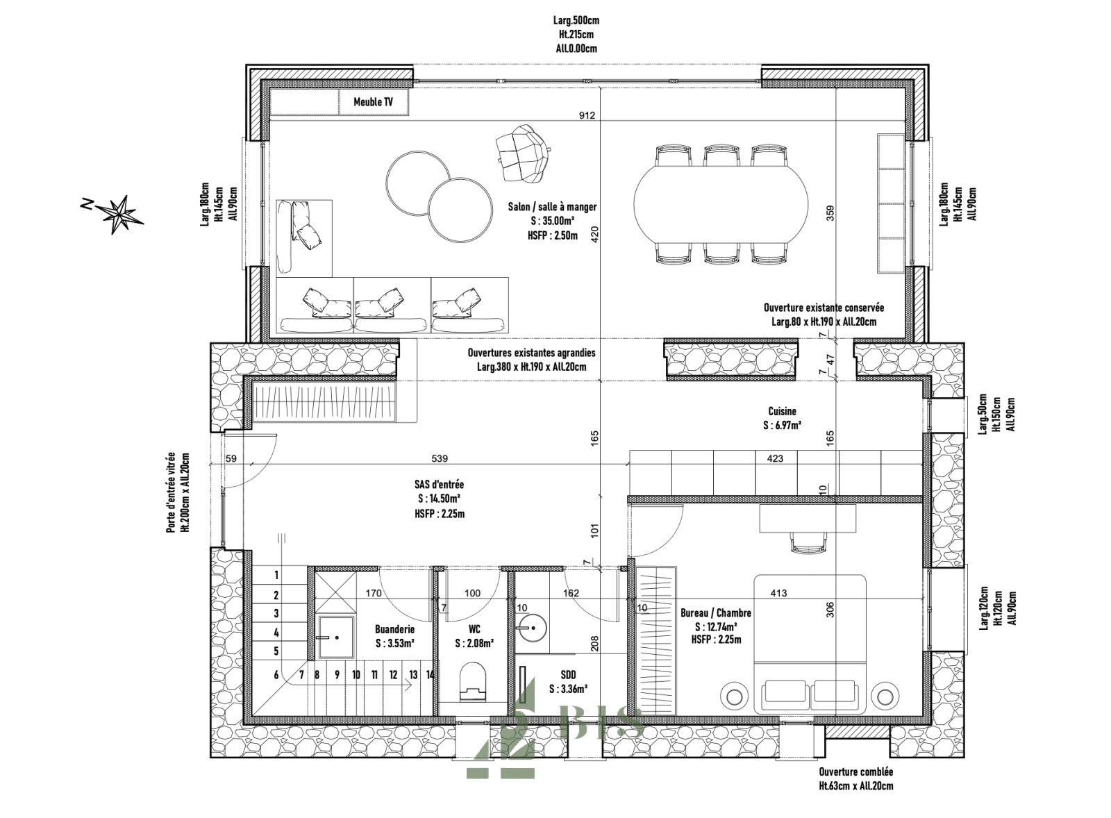
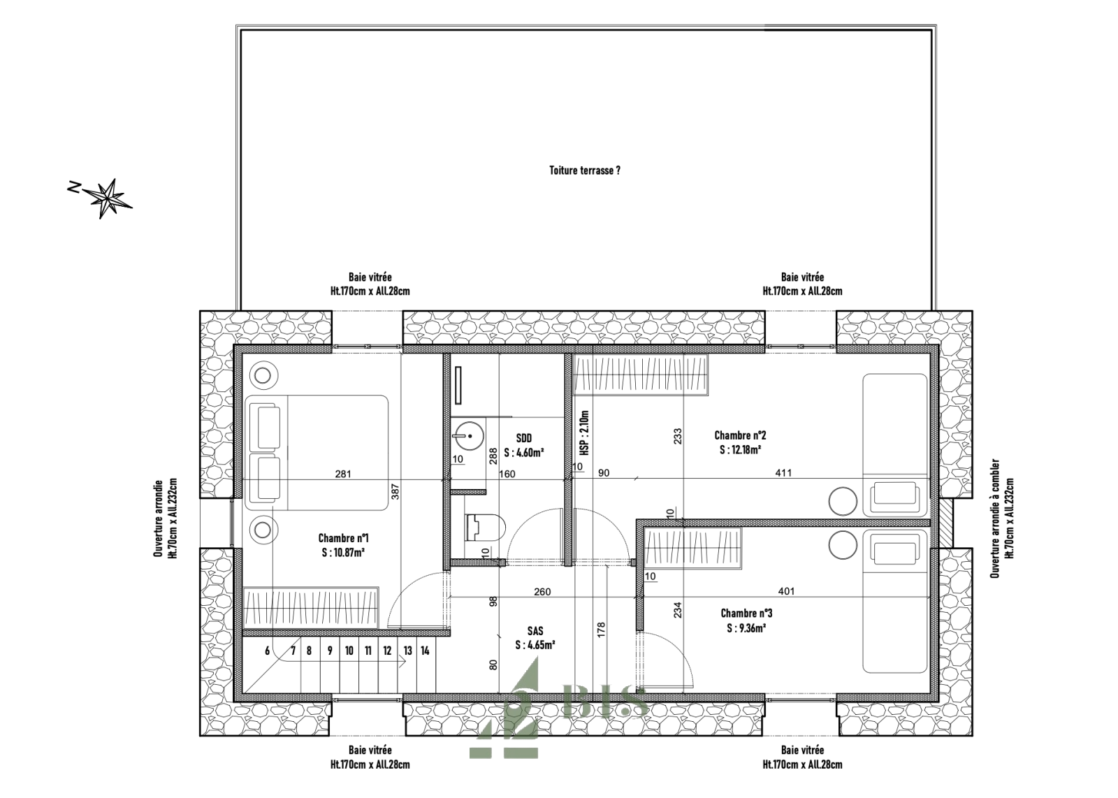
42bis-immo vous propose, à 15 minutes de Roanne, cette grange à rénover offrant un fort potentiel.

Composée de 2 niveaux d’environ 45 m² chacun, elle se situe sur un vaste terrain de 2600 m², sans aucun vis-à-vis, dans un environnement calme.

Un permis de construire a déjà été accepté pour un projet d’agrandissement permettant une rénovation totale de la grange, offrant 119 m2 habitables grâce à une extension.

Le cadre est idéal pour les amoureux de la nature, à la recherche d’espace et de tranquillité, tout en restant proche des commodités de Roanne.

Une opportunité rare !


Les informations sur les risques auxquels ce bien est exposé sont disponibles sur le site Géorisques
TRAD_ZEPHYR_Caracteristique TRAD_ZEPHYR_Valeurs
Code postal 42155
surface terrain 2 600 m²
Nombre de chambre(s) 3
Nombre de pièces 5
Nombre de niveaux 2
TRAD_ZEPHYR_Caracteristique TRAD_ZEPHYR_Valeurs
Terrasse NON
TRAD_ZEPHYR_Caracteristique TRAD_ZEPHYR_Valeurs
Copropriété NON
TRAD_ZEPHYR_Caracteristique TRAD_ZEPHYR_Valeurs
Prix de vente honoraires TTC inclus 95 000 €
Taxe foncière annuelle 143 €
DPE GES
  • Commerces et santé
  • Loisirs
  • Ecoles
  • Transports
  • Pratique
Contacter pour ce bien
Négociateur
GIVRE Léa Agent commercial
Téléphone 0783037837

* Champ obligatoire

Les informations recueillies sur ce formulaire sont enregistrées dans un fichier informatisé par La Boite Immo agissant comme Sous-traitant du traitement pour la gestion de la clientèle/prospects de l'Agence / du Réseau qui reste Responsable du Traitement de vos Données personnelles. La base légale du traitement repose sur l'intérêt légitime de l'Agence / du Réseau. Elles sont conservées jusqu'à demande de suppression et sont destinées à l'Agence / au Réseau. Conformément à la loi « informatique et libertés », vous disposez des droits d’accès, de rectification, d’effacement, d’opposition, de limitation et de portabilité de vos données. Vous pouvez retirer votre consentement à tout moment en contactant directement l’Agence / Le Réseau. Consultez le site https://cnil.fr/fr pour plus d’informations sur vos droits. Si vous estimez, après avoir contacté l'Agence / le Réseau, que vos droits « Informatique et Libertés » ne sont pas respectés, vous pouvez adresser une réclamation à la CNIL. Nous vous informons de l’existence de la liste d'opposition au démarchage téléphonique « Bloctel », sur laquelle vous pouvez vous inscrire ici : https://www.bloctel.gouv.fr Dans le cadre de la protection des Données personnelles, nous vous invitons à ne pas inscrire de Données sensibles dans le champ de saisie libre.
Ce site est protégé par reCAPTCHA, les Politiques de Confidentialité et les Conditions d'Utilisation de Google s'appliquent.

Découvrir nos outils